4761 -“for the Needy not greedy” 2 bedroom

$70,000 + GST
  • City: Auckland
  • Location: Whenuapai
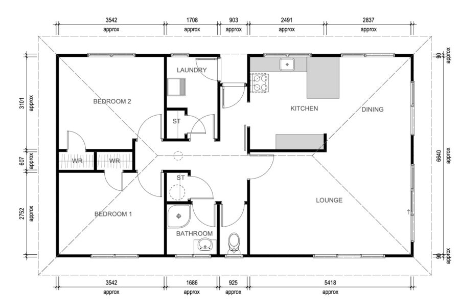
  • Bedrooms: 2
  • Bathrooms: 1.5
  • Floor Area: 80㎡

Details

Price to sell and if you are a bit handy an ideal home to renovate and add value. Solid exterior and roof but needs bathroom and laundry components.

  • Needs some TLC
  • Tile roof and cementboard cladding
  • good Kitchen

 

Price includes relocating this home within 100km to your site onto level ground with good access. Haines House Haulage will install standard NZ3604 timber piles and arrange the council inspection.

Haines will help manage your Building Consent plans through Council. Haines House Haulage is one of the most experienced house moving companies in New Zealand with 54 years’ experience and will ensure your relocation go smoothly.

Check out more houses

The Haines
Complete Guide to Relocating a Home

Are you considering a house relocation?

Buying a relocatable house is a significant investment and starting your relocation journey can be overwhelming. That's why we've developed a comprehensive guide packed with valuable insights and expert advice - this guide covers everything you need to know to make your relocation a success.

Ready to take the first step towards a stress-free house relocation?

Download our guide