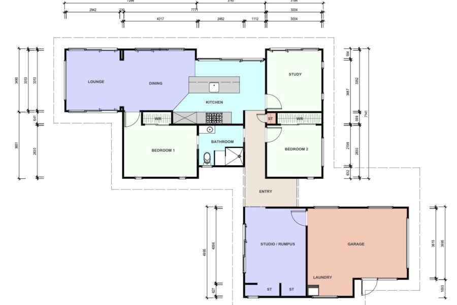
4830 “Omaha” 4 bedroom + Garage

$195,000 + GST
  • City: Auckland
  • Location: Whenuapai
  • Bedrooms: 3-4
  • Bathrooms: 2
  • Floor Area: 128㎡

Details

A great opportunity to relocate and build off this modern home as a base. This home is light, sunny, airy and well presented with beachy type location. The purchaser could build and breezeway type entrance to link the house and the garage/fourth bedroom or rumpus.

  • Modern big joinery & Double Glazing
  • Mono-pitch – Iron roof
  • Weatherboard cladding

Note does not include front covered deck roof or pillars – Connection to garage and cover roof can be built onsite by the purchaser

Price includes relocating this home within 100km to your site onto level ground with good access. Haines House Haulage will install standard NZ3604 timber piles and arrange the council inspection.

Haines will help manage your Building Consent plans through Council. Haines House Haulage is one of the most experienced house moving companies in New Zealand with 54 years’ experience and will ensure your relocation go smoothly.

Check out more houses

The Haines
Complete Guide to Relocating a Home

Are you considering a house relocation?

Buying a relocatable house is a significant investment and starting your relocation journey can be overwhelming. That's why we've developed a comprehensive guide packed with valuable insights and expert advice - this guide covers everything you need to know to make your relocation a success.

Ready to take the first step towards a stress-free house relocation?

Download our guide